Castelnuovo R., proponiamo in vendita palazzina di nuova costruzione CLASSE A4

SOLUZIONI ABITATIVE DI PREGIO

a due passi dal centro, immerso nel verde delle campagne di Castelnuovo R. elegante palazzina di sole 6 unità abitative.

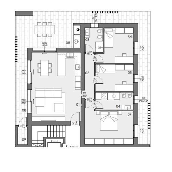
Le unità immobiliari sono composte da ampia zona giorno open space, reparto notte con tre camere da letto e due bagni.

Grande attenzione per gli spazi esterni e il comfort.

Soluzioni al piano terra con giardini privati di ampie dimensioni.

Terrazzi al primo piano coperti

ATTICI al secondo ed ultimo piano

Riscaldamento a pavimento, NO GAS, pompa di calore, ventilazione meccanica controllata, tapparelle coibentate motorizzate, impianto fotovoltaico dedicato per ogni appartamento.

  • Classe energetica A4

 

Per informazioni e/o visite STUDIO CASA Casarini Marina 335.7055321 Via E. Zanasi n. 2/e – Castelnuovo R. (MO) – info@studiocasamodena.it – Iscr. Ruolo C.C.I.A.A. Modena n. 2311 20/02/1998 – REA MO 399737