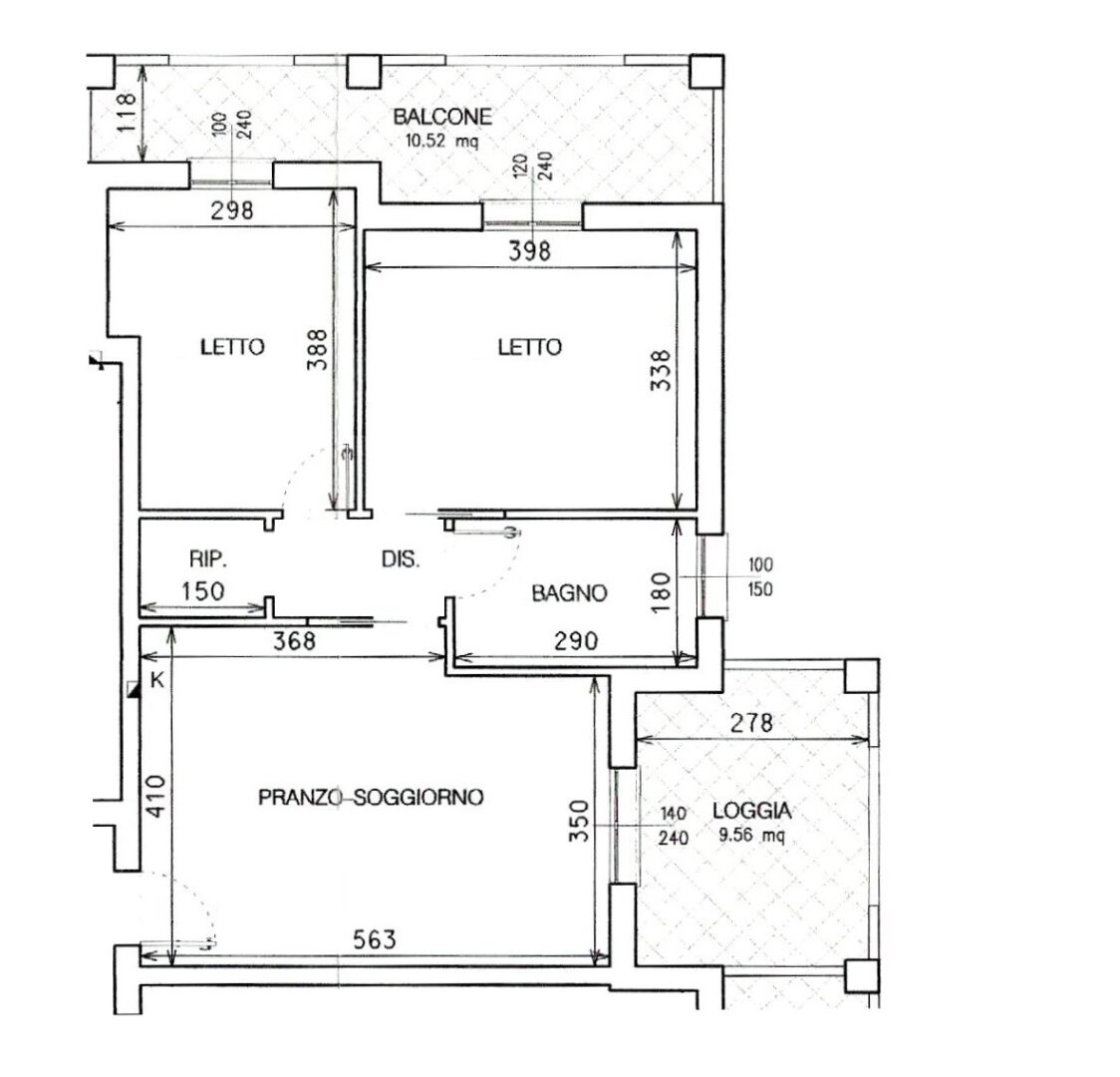
Formigine (Via Romano 17/B) In palazzina del 2006, proponiamo in vendita appartamento al primo piano con terrazzo vista parco. L’abitazione è composta da ingresso su sala open space e terrazzo coperto, disimpegno notte con comodo ripostiglio, bagno, cameretta e camera matrimoniale affacciate su balcone coperto. Completa la proprietà bellissimo garage doppio con cantina.

L’immobile è rifinito con Impianto Aria Condizionata con pompa di calore, Caldaia a condensazione, Impianto di domotica, inferriate e zanzariere.

Metratura commerciale

Appartamento 72 mq

Terrazzi 23 mq

Garage 45 mq

Disponibile a rogito

Ape in Classe D